Description
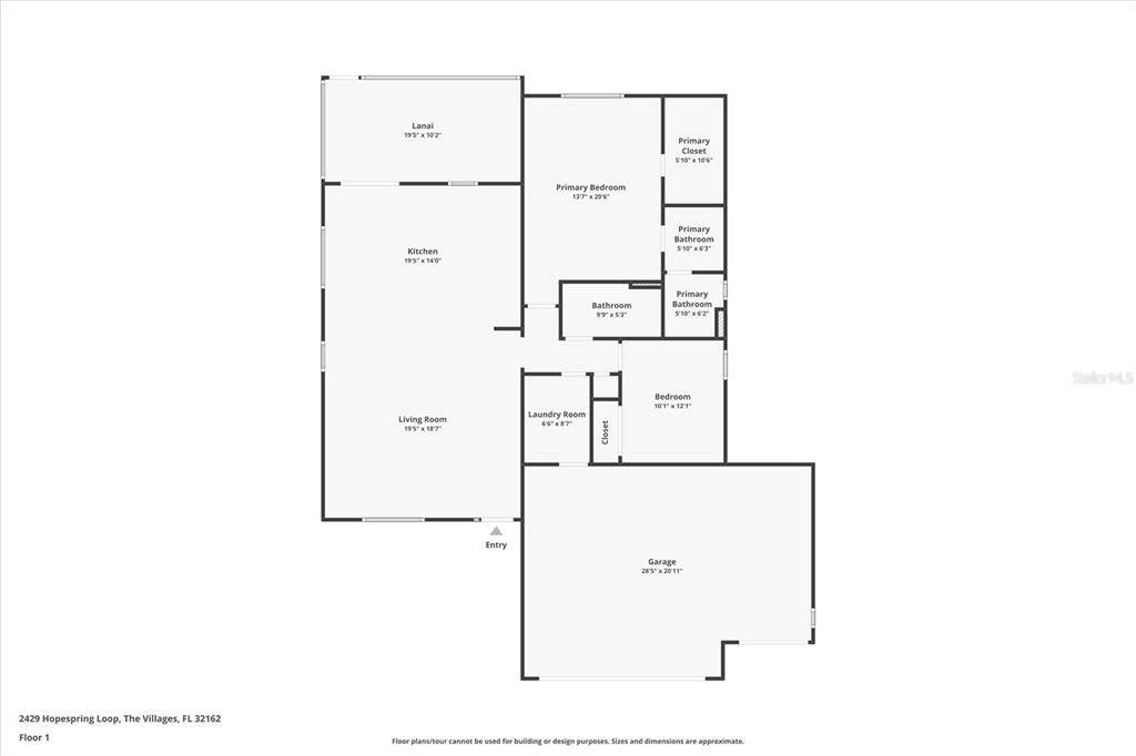
Welcome to this 2/2 The Pearl model home in the Village of St. James. Great location between Lake Sumter Landing and Brownwood Town Squares for dining, entertaining, and shopping. This property features a charming covered front porch, perfect for sipping your morning coffee, enjoying a quiet evening and visiting with your neighbors. The entry is complete with a glass storm door and glass side panel that invite natural light into the home. Inside, you’ll find an open floor plan along with ceiling fans throughout for year-round comfort. The L-shaped kitchen is both functional and stylish, featuring an island with pendant lighting that opens seamlessly to the main living areas—perfect for entertaining or casual gatherings. The spacious primary bedroom offers a large walk-in closet and an en-suite bath with dual vanities, a walk-in shower, solar tube and a window that fills the space with natural light. Guests will appreciate the separate bath with a tub/shower combination. Additional highlights include a 2-car garage plus a dedicated golf cart garage, screened lanai, a privacy wall behind the home for added privacy, interior Laundry Room, and a Nova Water Filtration system for peace of mind. This home combines thoughtful features with an open, welcoming layout ready to enjoy. Just minutes by golf cart to St. James pool and Southern Star Executive golf course. Sterling Heights Pool and Recreation Center is under a mile away and Sea Breeze Recreation center is just 1 ½ miles. Don’t miss your opportunity to start living The Villages Dream. Watch our video and make your appointment to see this home today.
-
2BEDS
-
0.13ACRES
-
2BATHS
-
01/2 BATHS
-
1,367SQFT
-
$255$/SQFT
School Ratings & Info
Description
Welcome to this 2/2 The Pearl model home in the Village of St. James. Great location between Lake Sumter Landing and Brownwood Town Squares for dining, entertaining, and shopping. This property features a charming covered front porch, perfect for sipping your morning coffee, enjoying a quiet evening and visiting with your neighbors. The entry is complete with a glass storm door and glass side panel that invite natural light into the home. Inside, you’ll find an open floor plan along with ceiling fans throughout for year-round comfort. The L-shaped kitchen is both functional and stylish, featuring an island with pendant lighting that opens seamlessly to the main living areas—perfect for entertaining or casual gatherings. The spacious primary bedroom offers a large walk-in closet and an en-suite bath with dual vanities, a walk-in shower, solar tube and a window that fills the space with natural light. Guests will appreciate the separate bath with a tub/shower combination. Additional highlights include a 2-car garage plus a dedicated golf cart garage, screened lanai, a privacy wall behind the home for added privacy, interior Laundry Room, and a Nova Water Filtration system for peace of mind. This home combines thoughtful features with an open, welcoming layout ready to enjoy. Just minutes by golf cart to St. James pool and Southern Star Executive golf course. Sterling Heights Pool and Recreation Center is under a mile away and Sea Breeze Recreation center is just 1 ½ miles. Don’t miss your opportunity to start living The Villages Dream. Watch our video and make your appointment to see this home today.
© 2026 My Florida Regional MLS DBA Stellar MLS. All rights reserved. All listings displayed pursuant to IDX. All listing information is deemed reliable but not guaranteed and should be independently verified through personal inspection by appropriate professionals. Listings displayed on this website may be subject to prior sale or removal from sale; availability of any listing should always be independently verified. Listing information is provided for consumers personal, non-commercial use, solely to identify potential properties for potential purchase; all other use is strictly prohibited and may violate relevant federal and state law. Data last updated 2026-01-15T18:45:29.63.
